Rustico in vendita

Lainate, Via Martiri della Libertà - Barbaiana
€ 160.000
Prezzo aggiornato
5 locali 5 locali
367 Mq 367 Mq
4 bagni 4 bagni

Rustico in vendita

Lainate, Via Martiri della Libertà - Barbaiana

Descrizione annuncio

Nel pieno centro di Barbaiana di Lainate, proponiamo in vendita una soluzione immobiliare estremamente interessante, ideale per investitori o per chi desidera realizzare un progetto abitativo personalizzato in una posizione strategica e ben servita.

L’immobile si sviluppa su due livelli e offre ampie possibilità di trasformazione e valorizzazione.
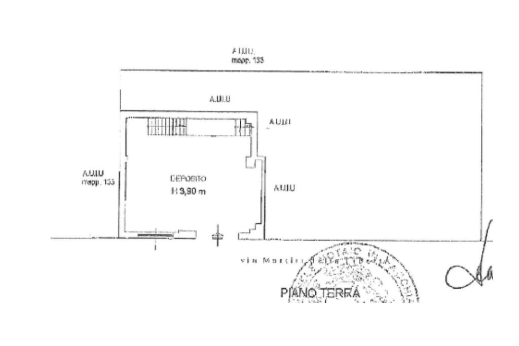
Al piano terra troviamo una porzione attualmente disposta come bilocale completamente da ristrutturare, affiancata da tre locali ad uso deposito. Gli spazi risultano versatili e facilmente ripensabili secondo le proprie esigenze, sia in ottica residenziale sia come operazione di investimento.

Salendo al piano primo, l’immobile ospita un unico grande ambiente adibito a deposito, caratterizzato da metrature generose che consentono una distribuzione interna flessibile e funzionale.

Elemento di grande valore è la possibilità già prevista di effettuare il cambio di destinazione d’uso da deposito ad abitazione, rendendo l’immobile particolarmente appetibile per chi desidera realizzare una o più unità abitative. Questo aspetto riduce notevolmente tempi e incertezze legate allo sviluppo del progetto, aumentando il potenziale rendimento dell’investimento.

La posizione centrale garantisce la comodità di tutti i principali servizi, come negozi, scuole e collegamenti, rendendo la futura abitazione ideale sia per la residenza principale sia per la messa a reddito.

In sintesi, si tratta di una soluzione unica nel suo genere, con ampie potenzialità di trasformazione, situata in una zona richiesta e in costante sviluppo. Un’ottima opportunità di investimento per chi sa guardare oltre lo stato attuale e immaginare il valore futuro dell’immobile.

Le informazioni contenute sono puramente indicative e non costituiscono elementi contrattuali.

Per appuntamenti i nostri incaricati sono disponibili dal lunedì al venerdì dalle ore 9.00 alle 12.30 e dalle 14.30 alle 20.00 e il sabato dalle 9.00 alle 12.30 e dalle 14:30 alle 18:00.
a vostra disposizione uno staff di consulenza creditizia in grado di proporvi il mutuo o il finanziamento più adatto alle vostre possibilità. Contattateci per fissare un incontro gratuito nei nostri uffici.
Ogni agenzia ha un proprio titolare ed è autonoma.

Mostra tutto

Nelle vicinanze

Trasporto pubblico Trasporto pubblico
Vanzago-Pogliano
Vanzago-Pogliano
2,7 Km
Trasporto pubblico
300 m
Via Biringhello (Biringhello)
Via Biringhello (Biringhello)
1,1 Km
Ricariche auto elettriche Ricariche auto elettriche
Burger King Pogliano Milanese | EnelX
460 m
Rho Biblioteca Comunale
1,7 Km
Acqua & Sapone Lainate
2,1 Km
Tigros Pogliano
2,2 Km
LIDL Lainate
2,3 Km
Scuole Scuole
Scuole
260 m
Scuola Secondaria di I grado "F. Bonecchi", succursale
880 m
Liceo Classico Statale "Clemente Rebora"
1,8 Km
Scuola Secondaria di I grado "F. Bonecchi"
1,9 Km
Istituto Tecnico Commerciale Statale "Enrico Mattei"
1,9 Km
Farmacia Farmacia
Farmacia
120 m
Farmacia Comunale
870 m
FARMACIA Cuttone
1,5 Km
Farmacia Comunale #1
2,3 Km
Farmacia Chiaudani
2,3 Km
Ospedali Ospedali
Ospedale di Circolo - Rho
1,9 Km
Ospedale "Giuseppe Casati"
2,4 Km
Supermercati Supermercati
EuroSpin
300 m
Esselunga
730 m
Rho Center
970 m
Conad
1,3 Km
Leader Price
1,9 Km
Negozi Negozi
SuperD
220 m
Il forno delle specialità
2,1 Km
Negozi
2,4 Km
Caccia Mode
2,5 Km
Le Coccinelle
2,5 Km
Bar Bar
BlowUp
1,2 Km
Il Caffè degli Artisti
1,3 Km
Bar Simplon
2,0 Km
Discoteca Fellini Club House
2,1 Km
Bar
2,1 Km
Ristoranti Ristoranti
Ai Girasoli
450 m
Grill Inn Store
1,1 Km
L'Agricola • Amburgheria
1,4 Km
L'Agricola • Ristorante
1,4 Km
Grancetta
1,4 Km
Mostra tutto

Caratteristiche

Rif.:
61167227
Piano:
1 di 1 (Piano su più livelli)
Camere da letto:
4
Arredamento:
Assente
Condizionamento:
Assente
Ascensore:
No
Mostra tutto
Prezzo Prezzo
€ 160.000
Rata mutuo Rata mutuo
€ 743 / mese
Spese annue Spese annue
€ 0
Proponi il tuo prezzoProponi il tuo prezzo

Classe Energetica

G
G
G
G
G
G
G
G
G
EP globale non rinnovabile:
342.87 kW h/m² anno
EP invernale del fabbricato:
EP estiva del fabbricato:
Anno di costruzione:
1960
Riscaldamento:
Autonomo
Tipo impianto:
A radiatori
Tipo alimentazione:
Metano

Prezzo ridotto di €1 (12%%)

Ti interessa visionare l'immobile?

Fissa un appuntamento  Fissa un appuntamento

Richiedi informazioni

Clicca su Leggi per aprire l'informativa
* Questi campi sono obbligatori

Calcola il tuo mutuo

Semplice e senza impegno
Anticipo

( % )
Mutuo

( % )

pochi semplici passi

inserisci i tuoi dati
Questionario completato
Grazie per aver richiesto un appuntamento senza impegno con un nostro Consulente del Credito e Assicurativo.

Hai inserito correttamente tutti i dati necessari e a breve riceverai una e-mail con un link da convalidare per inviare i tuoi dati.
Affiliato
Immobiliare Litta Due Sas
Via Roma, 17 20020 Lainate (MI)

Il nostro staff


  • Luca Airoldi
    Responsabile

  • Alessandro Sorce
    Affiliato
Via Roma, 17 20020 Lainate (MI)
Zona: Lainate - Barbaiana - Grancia - Pagliera
Mostra su mappa
Affiliato
Immobiliare Litta Due Sas
Via Roma, 17 20020 Lainate (MI)

2026 Tecnocasa Franchising S.p.A. - P. IVA 08365160152 - Via Monte Bianco 60/A 20089 Rozzano (MI). Ogni agenzia ha un proprio titolare ed è autonoma. Privacy policy | Policy utilizzo | Cookie policy