Trilocale in vendita

Lainate, Via della Repubblica - Barbaiana
€ 147.000
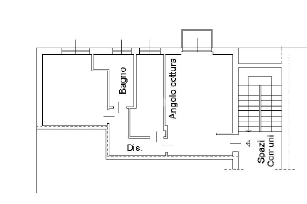
3 locali 3 locali
75 Mq 75 Mq
1 bagno 1 bagno

Trilocale in vendita

Lainate, Via della Repubblica - Barbaiana

Descrizione annuncio

TRE LOCALI COMPLETAMENTE RISTRUTTURATO.

Proponiamo in vendita un elegante trilocale completamente ristrutturato, situato in una palazzina degli anni 80, ubicato in pieno centro di Barbaiana (Lainate). L'appartamento, ideale per chi cerca comfort e modernità, si trova in un contesto residenziale tranquillo ma ben collegato a tutti i principali servizi.

L'immobile si compone di un luminoso soggiorno con cucina a vista e balcone, perfetto per chi ama gli ambienti open space e la convivialità tramite disimpegno accediamo alla zona notte, comprende una spaziosa camera matrimoniale e una cameretta, ideali per una coppia, una famiglia o per chi necessita di uno spazio aggiuntivo per lavoro o hobby, oltre al bagno dotato di piatto doccia (finestrato)
L'appartamento si distingue per la recente ristrutturazione che ha valorizzato gli spazi con materiali di qualità, impianti moderni e soluzioni estetiche contemporanee.
La posizione è un grande punto di forza:offre supermercati, negozi, scuole, mezzi pubblici e un rapido accesso alle principali arterie stradali, rendendo questa soluzione perfetta per chi desidera vivere in un'area comoda e ben servita.

Le informazioni contenute sono puramente indicative e non costituiscono elementi contrattuali.

Per appuntamenti i nostri incaricati sono disponibili dal lunedì al venerdì dalle ore 9.00 alle 12.30 e dalle 14.30 alle 20.00 e il sabato dalle 9.00 alle 12.30 e dalle 14:30 alle 18:00.
a vostra disposizione uno staff di consulenza creditizia in grado di proporvi il mutuo o il finanziamento più adatto alle vostre possibilità. contattateci per fissare un incontro gratuito nei nostri uffici.
Ogni agenzia ha un proprio titolare ed è autonoma.
Mostra tutto

Nelle vicinanze

Trasporto pubblico Trasporto pubblico
Vanzago-Pogliano
Vanzago-Pogliano
2,8 Km
Trasporto pubblico
460 m
Via Biringhello (Biringhello)
Via Biringhello (Biringhello)
1,3 Km
Ricariche auto elettriche Ricariche auto elettriche
Burger King Pogliano Milanese | EnelX
510 m
Rho Biblioteca Comunale
1,9 Km
Acqua & Sapone Lainate
2,0 Km
LIDL Lainate
2,2 Km
McDonald's Lainate
2,2 Km
Scuole Scuole
Scuole
410 m
Scuola Secondaria di I grado "F. Bonecchi", succursale
1,1 Km
Liceo Classico Statale "Clemente Rebora"
2,0 Km
Scuola Secondaria di I grado "F. Bonecchi"
2,1 Km
Istituto Tecnico Commerciale Statale "Enrico Mattei"
2,1 Km
Farmacia Farmacia
Farmacia
220 m
Farmacia Comunale
780 m
FARMACIA Cuttone
1,5 Km
Farmacia Comunale #1
2,5 Km
Farmacia Chiaudani
2,5 Km
Ospedali Ospedali
Ospedale di Circolo - Rho
2,2 Km
Ospedale "Giuseppe Casati"
2,5 Km
Supermercati Supermercati
EuroSpin
460 m
Esselunga
940 m
Conad
1,1 Km
Rho Center
1,2 Km
Bennet
2,1 Km
Negozi Negozi
SuperD
410 m
Il forno delle specialità
2,3 Km
NervianoStore
2,4 Km
Negozi
2,5 Km
Caccia Mode
2,6 Km
Bar Bar
BlowUp
1,0 Km
Il Caffè degli Artisti
1,1 Km
Myth pub
2,0 Km
Discoteca Fellini Club House
2,1 Km
Bar Simplon
2,2 Km
Ristoranti Ristoranti
Ai Girasoli
490 m
Grill Inn Store
970 m
Grancetta
1,2 Km
Miyako Sushi
1,3 Km
L'Agricola • Amburgheria
1,4 Km
Mostra tutto

Caratteristiche

Rif.:
61041639
Piano:
3 di 3 (Piano medio)
Posti auto:
1
Balconi:
1
Camere da letto:
2
Arredamento:
Parziale
Mostra tutto
Prezzo Prezzo
€ 147.000
Rata mutuo Rata mutuo
€ 679 / mese
Spese annue Spese annue
€ 700
Proponi il tuo prezzoProponi il tuo prezzo

Classe Energetica

E
E
E
E
E
E
E
E
E
EP globale non rinnovabile:
245.23 kW h/m² anno
EP globale rinnovabile:
245.23 kW h/m² anno
EP invernale del fabbricato:
EP estiva del fabbricato:
Anno di costruzione:
1980
Riscaldamento:
Autonomo
Tipo impianto:
A radiatori
Tipo alimentazione:
Metano

Ti interessa visionare l'immobile?

Fissa un appuntamento  Fissa un appuntamento

Richiedi informazioni

* Questi campi sono obbligatori

Calcola il tuo mutuo

Semplice e senza impegno
Anticipo

( % )
Mutuo

( % )

pochi semplici passi

inserisci i tuoi dati
Questionario completato
Grazie per aver richiesto un appuntamento senza impegno con un nostro Consulente del Credito e Assicurativo.

Hai inserito correttamente tutti i dati necessari e a breve riceverai una e-mail con un link da convalidare per inviare i tuoi dati.
Affiliato
Immobiliare Litta Due Sas
Via Roma, 17 20020 Lainate (MI)

Il nostro staff


  • Luca Airoldi
    Responsabile

  • Alessandro Sorce
    Affiliato
Via Roma, 17 20020 Lainate (MI)
Zona: Lainate - Barbaiana - Grancia - Pagliera
Mostra su mappa
Affiliato
Immobiliare Litta Due Sas
Via Roma, 17 20020 Lainate (MI)

2025 Tecnocasa Franchising S.p.A. - P. IVA 08365160152 - Via Monte Bianco 60/A 20089 Rozzano (MI). Ogni agenzia ha un proprio titolare ed è autonoma. Privacy policy | Policy utilizzo | Cookie policy